1353 Three Horses Lane Maryville, TN 37803

UPDATED:
Key Details
Property Type Single Family Home
Sub Type Single Family Residence
Listing Status Active
Purchase Type For Sale
Square Footage 2,618 sqft
Price per Sqft $159
Subdivision Best Farms
MLS Listing ID 1322993
Style Traditional
Bedrooms 5
Full Baths 3
Half Baths 1
HOA Fees $425/ann
Year Built 2025
Lot Size 6,098 Sqft
Acres 0.14
Property Sub-Type Single Family Residence
Source East Tennessee REALTORS® MLS
Property Description
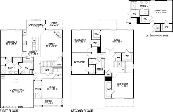
The main level features an inviting open-concept layout that seamlessly connects the kitchen, breakfast nook, and living areas, ideal for entertaining and everyday living. The kitchen includes espresso colored shaker-style cabinetry, large island with speckled granite and countertop seating, a generous pantry, and a bright breakfast nook overlooking the patio. A formal dining room, powder room, and conveniently located laundry room add to the home's thoughtful design. The main-level primary suite offers a peaceful retreat with a spacious walk-in closet and a private bathroom.
Tradition Series Features include 9ft Ceilings on first floor, Shaker style cabinetry, Solid Surface Countertops with 4in backsplash, Stainless Steel appliances by Whirlpool, Moen Chrome plumbing fixtures with Anti-scald shower valves, Mohawk flooring, LED lighting throughout, Architectural Shingles, Concrete rear patio (may vary per plan), & our Home Is Connected Smart Home Package. Seller offering closing cost assistance to qualified buyers. Builder warranty included. See agent for details.
Due to variations amongst computer monitors, actual colors may vary. Pictures, photographs, colors, features, and sizes are for illustration purposes only and will vary from the homes as built. Photos may include digital staging. Square footage and dimensions are approximate. Buyer should conduct his or her own investigation of the present and future availability of school districts and school assignments. *Taxes are estimated. Buyer to verify all information.
Location
State TN
County Blount County - 28
Area 0.14
Rooms
Family Room Yes
Other Rooms LaundryUtility, Breakfast Room, Family Room, Mstr Bedroom Main Level, Split Bedroom
Basement Slab, None
Dining Room Breakfast Bar, Formal Dining Area, Breakfast Room
Interior
Interior Features Walk-In Closet(s), Kitchen Island, Pantry, Breakfast Bar
Heating Central, Ceiling, Heat Pump, Natural Gas, Zoned, Electric
Cooling Central Cooling, Zoned
Flooring Laminate, Carpet, Vinyl
Fireplaces Number 1
Fireplaces Type Gas, Gas Log
Fireplace Yes
Window Features Windows - Insulated
Appliance Tankless Water Heater, Dishwasher, Disposal, Microwave, Range
Heat Source Central, Ceiling, Heat Pump, Natural Gas, Zoned, Electric
Laundry true
Exterior
Exterior Feature Windows - Vinyl
Parking Features Garage Door Opener, Attached, Main Level
Garage Spaces 2.0
Garage Description Attached, Garage Door Opener, Main Level, Attached
View Other
Total Parking Spaces 2
Garage Yes
Building
Lot Description Level
Faces From Alcoa Hwy, turn onto Sandy Springs Rd Continue onto Carpenters Grade Rd Turn left onto Best Rd Turn left onto Best Farms Ln
Sewer Public Sewer
Water Public
Architectural Style Traditional
Structure Type Vinyl Siding,Brick,Frame,Other
Schools
Elementary Schools Carpenters
Middle Schools Carpenters
High Schools Heritage
Others
HOA Fee Include Other
Restrictions No
Tax ID 079N G 046.00
Security Features Smoke Detector
Energy Description Electric, Gas(Natural)
GET MORE INFORMATION



